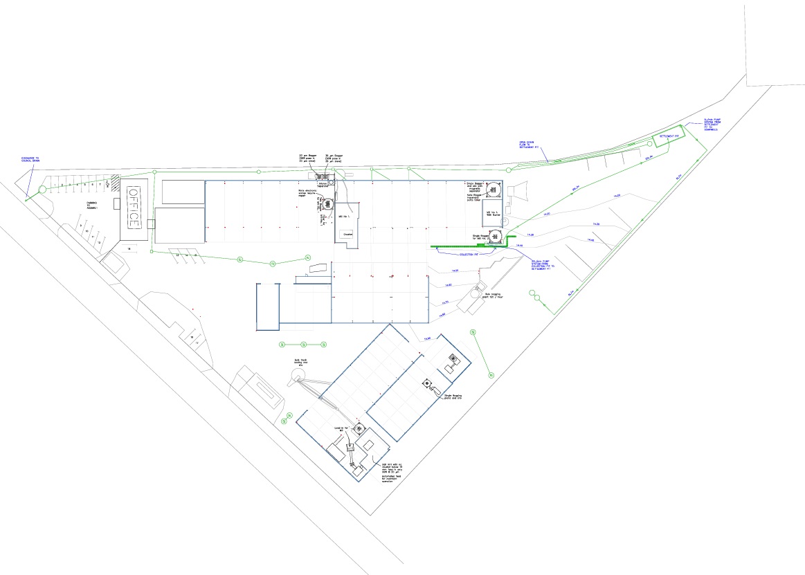
Design and engineering drawings

Designed to Solve Problems

Got an idea you want to bring to life, or a problem you want solved. we can help design solutions that simply just work.

-